 
			 
				 
	 
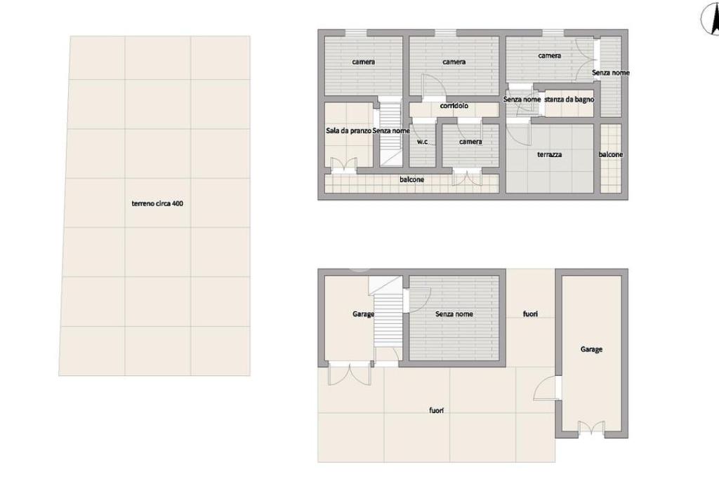
		A pochi km dalla  statale  che comunica Montesarchio con Benevento nel caratteristico borgo storico soleggiato di Squillani, casa indipendente su due livelli con terreno di circa 350 mq avente cancello pedonale e  spazio cementato di circa 50 mq antistante al fabbricato con porticato .
 La soluzione e disposta su due livelli; Piano terra garage di circa 50 mq dove è  possibile  mettere più macchine  e cantina ampia e spaziosa. Piano primo si accede da un vano scala ampio con possibilità di creare un piccolo salone aperto , cucina abitabile con camino balcone e finestra, bagno di servizio , 4 camere da letto spaziose, un  bagno con doccia e finestra e terrazzo di circa 30 mq con affaccio panoramico.
 Termosifoni in tutti gli ambienti
Ti interessa visionare l'immobile?